Tolódzkodó állvány

IM T0401, IM T0402

Termék-kategóriák » Tornaeszközök » Tolódzkodó állvány
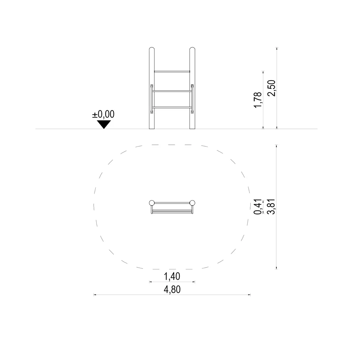
Eszköz mérete136 cm x 39 cm
Szükséges tér476 cm x 379 cm
Esésmagasságmax. 178 cm
Esési tér területe15,5 m2
Esési tér kerülete14,1 m
Ütéscsillapítás anyagaszemcsés szerkezetű talaj 20 + 10 cm vastagságban vagy szintetikus gumiburkolat 178 cm esésmagassághoz
Eszköz legmagasabb pontja250 cm
Ajánlott életkor10-14 év
Felhasználók száma1
Alapozás síkja100 cm
Anyagakác, tölgy szerkezet, rozsdamentes acél kapaszkodó cső
Legnehezebb elem55 kg
Legnagyobb elem350 cm
SzabványMSZ EN 1176-1:2018
PDF rajz letöltés
PDF adatlap letöltés
DWG letöltés
Ezt a terméket már felvetted a listádra.
Termékek